Хочешь скидку? Получи персональное предложение!

Заполните форму
— и мы вам перезвоним

Или напишите нам сами

Брутальный пентхаус в ЖК Wine House

img_2063_kopiya_result.jpg

О проекте

  • Статус
    Реализован
  • Тип
    Премиум
  • Площадь
    130 м2
  • Теги
    Реализован
    Минимализм
    Пентхаус
    Special

Хочу в таком же стиле!

Встретить «своего» заказчика, чей запрос будет глубоко отзываться и радовать дизайнера, – большая удача. Владелец этой двухуровневой квартиры в московском ЖК «Wine House» оказался именно таким: его смелое видение нестандартного интерьера требовало подходящего специалиста. За плечами студии был огромный опыт работы с минималистичными пространствами, поэтому общий язык с искушенным клиентом мы нашли сразу.

Оформление хотелось сделать сдержанным, но при этом тонко отражающим вкусы хозяина – его тяга к брутальности получила отражение в обилии крупных форм и ломаных линий, а интерес к современному искусству задал направление в декорировании проекта. Команда намеренно отказалась от ярких цветов в пользу архитектурной цельности дома.

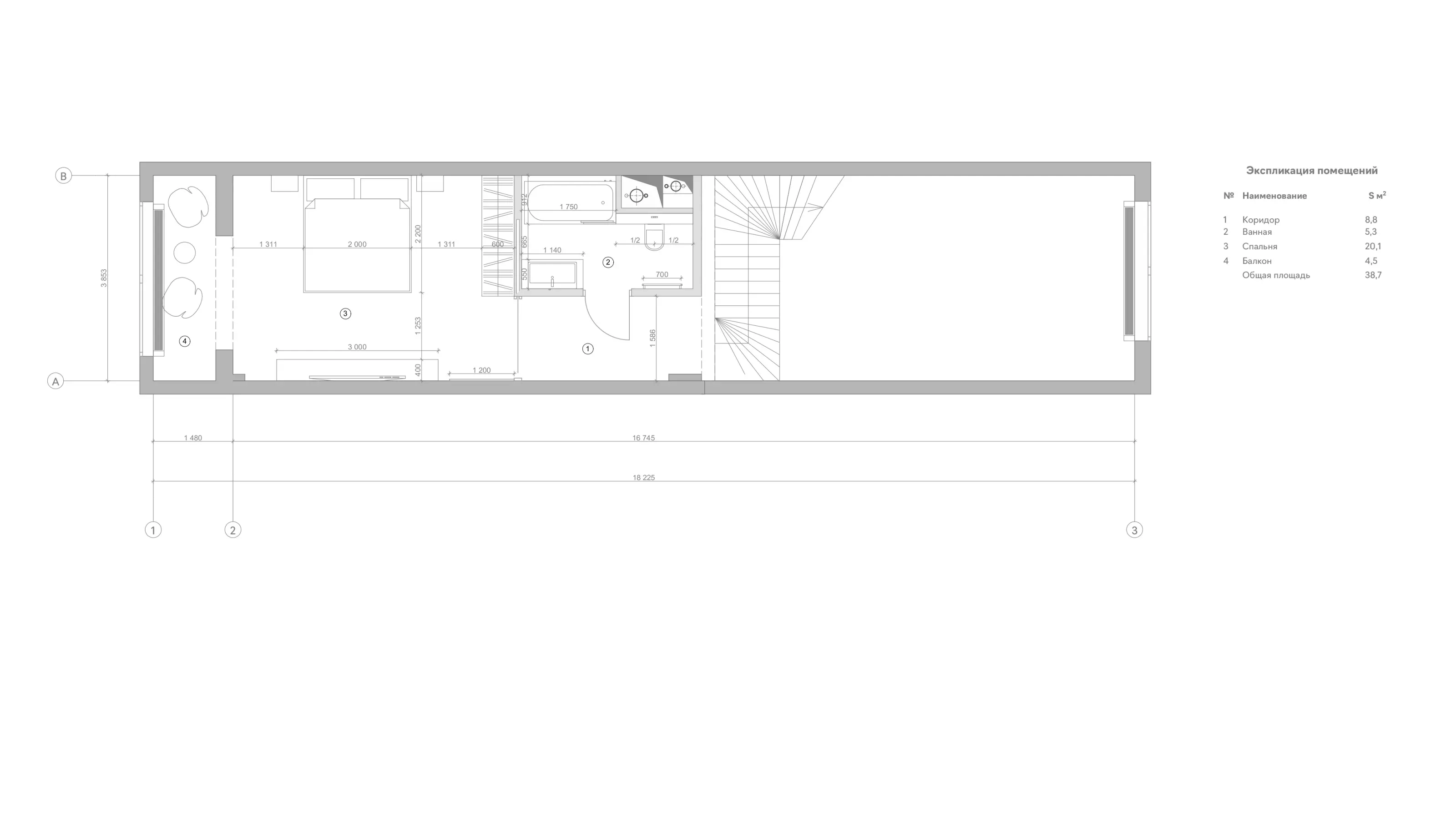
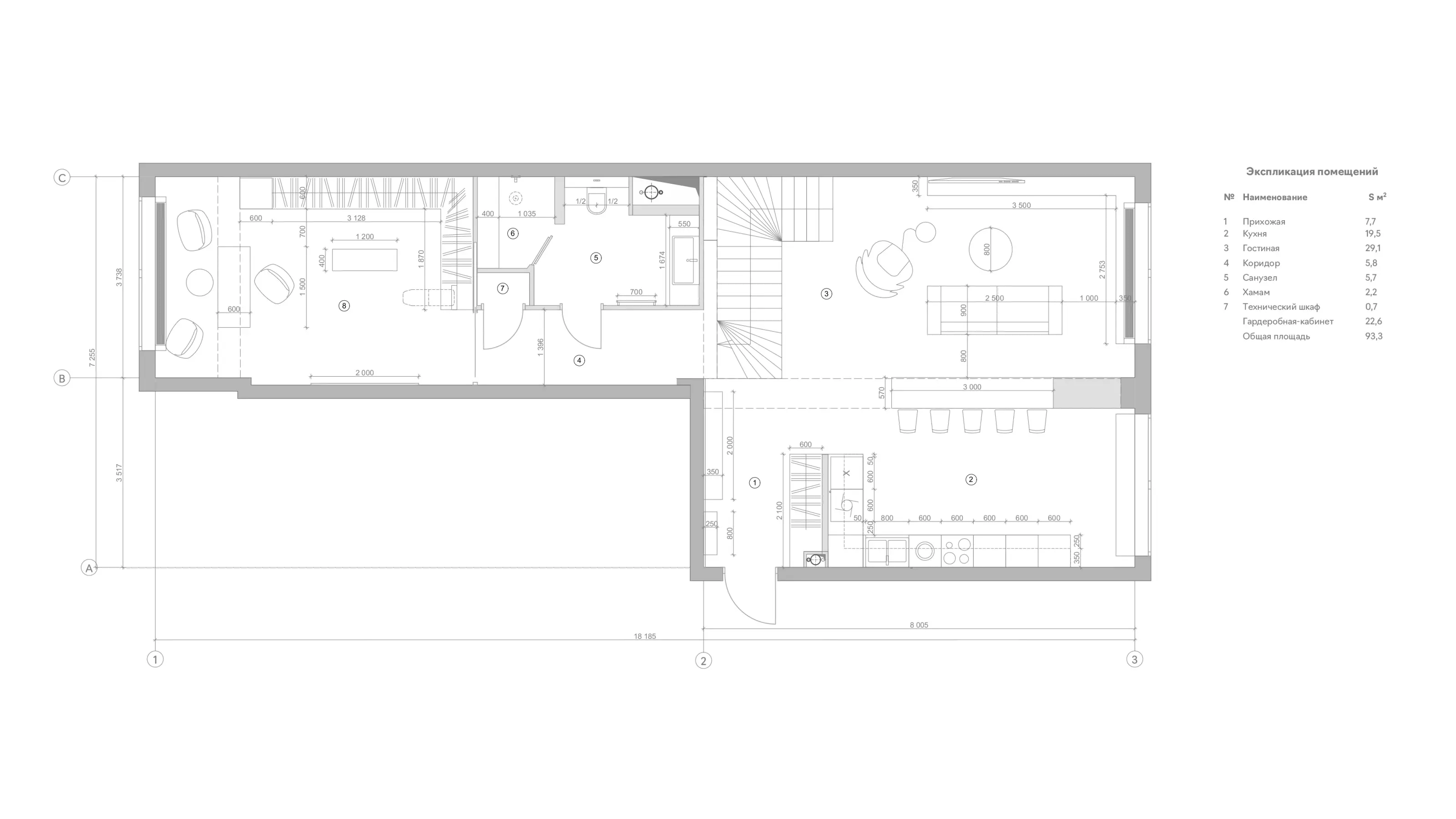
planirovka_1_yetazh.jpg planirovka_2_yetazh.jpg
О проекте написали
Следующий кейс Проект в ЖК Сердце Столицы
img_0600_kopiya_result.jpg