Хочешь скидку? Получи персональное предложение!

Заполните форму
— и мы вам перезвоним

Или напишите нам сами

Цифровой фитнес WellBell в ЖК Царская площадь

1_zaglavnoe_wellbell_hall_resepshn_lyudi_result.jpg

О проекте

  • Год проектирования
    2018
  • Площадь
    160 м2
  • Теги
    Минимализм

Хочу в таком же стиле!

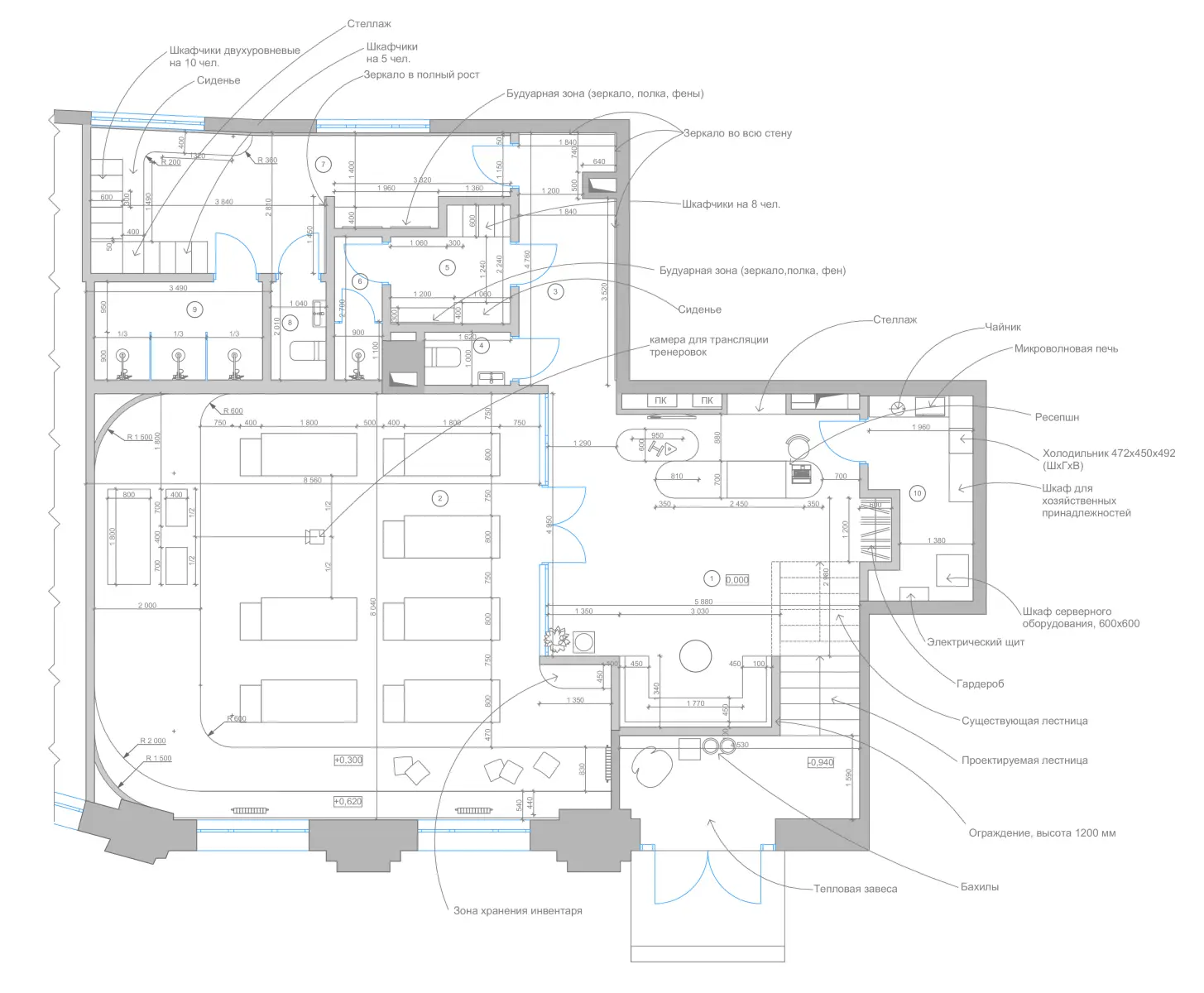
wellbell__prezentaciya_chertezhi.jpg
Следующий кейс Фитнесс зал в ЖК Детали
1_zaglavnoe__zal_1_08_result_result.jpg