Хочешь скидку? Получи персональное предложение!

Заполните форму
— и мы вам перезвоним

Или напишите нам сами

МОП в ЖК Огни

b_7_result.jpg

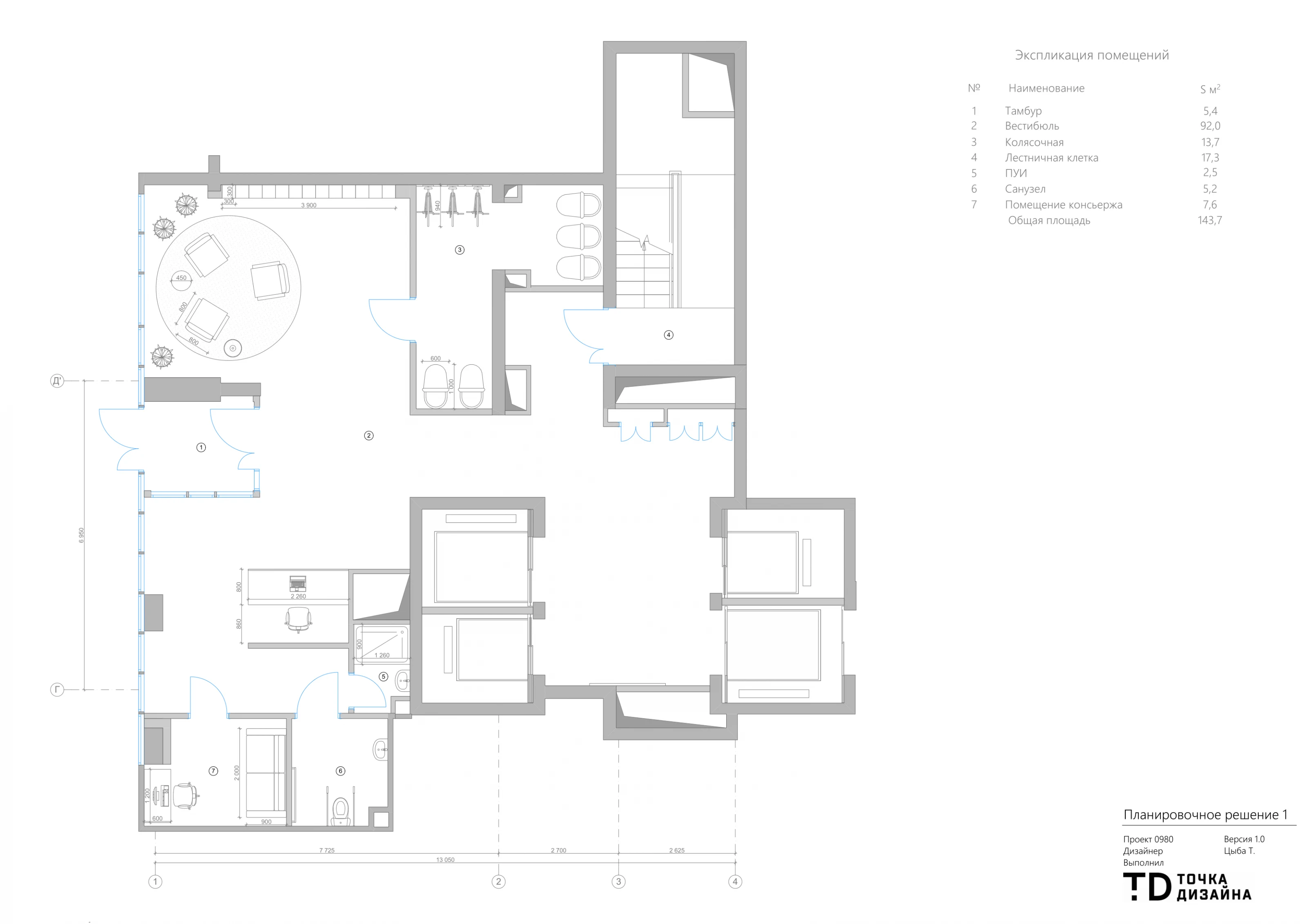
О проекте

  • Статус
    Реализован
  • Год проектирования
    2019
  • Площадь
    130 м2
  • Застройщик
    donstroj_1_2(1).png
  • Теги
    Реализован

Хочу в таком же стиле!

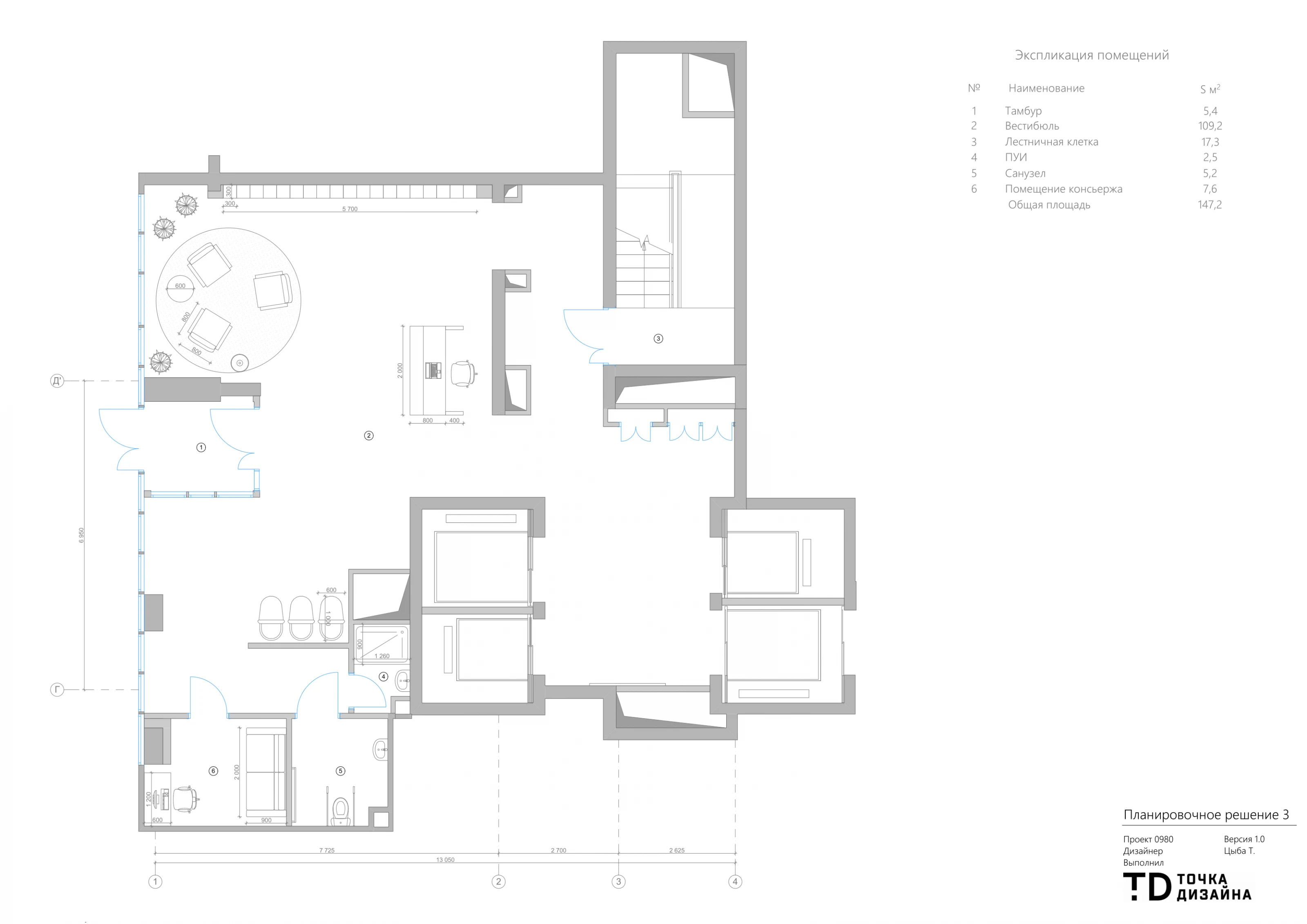
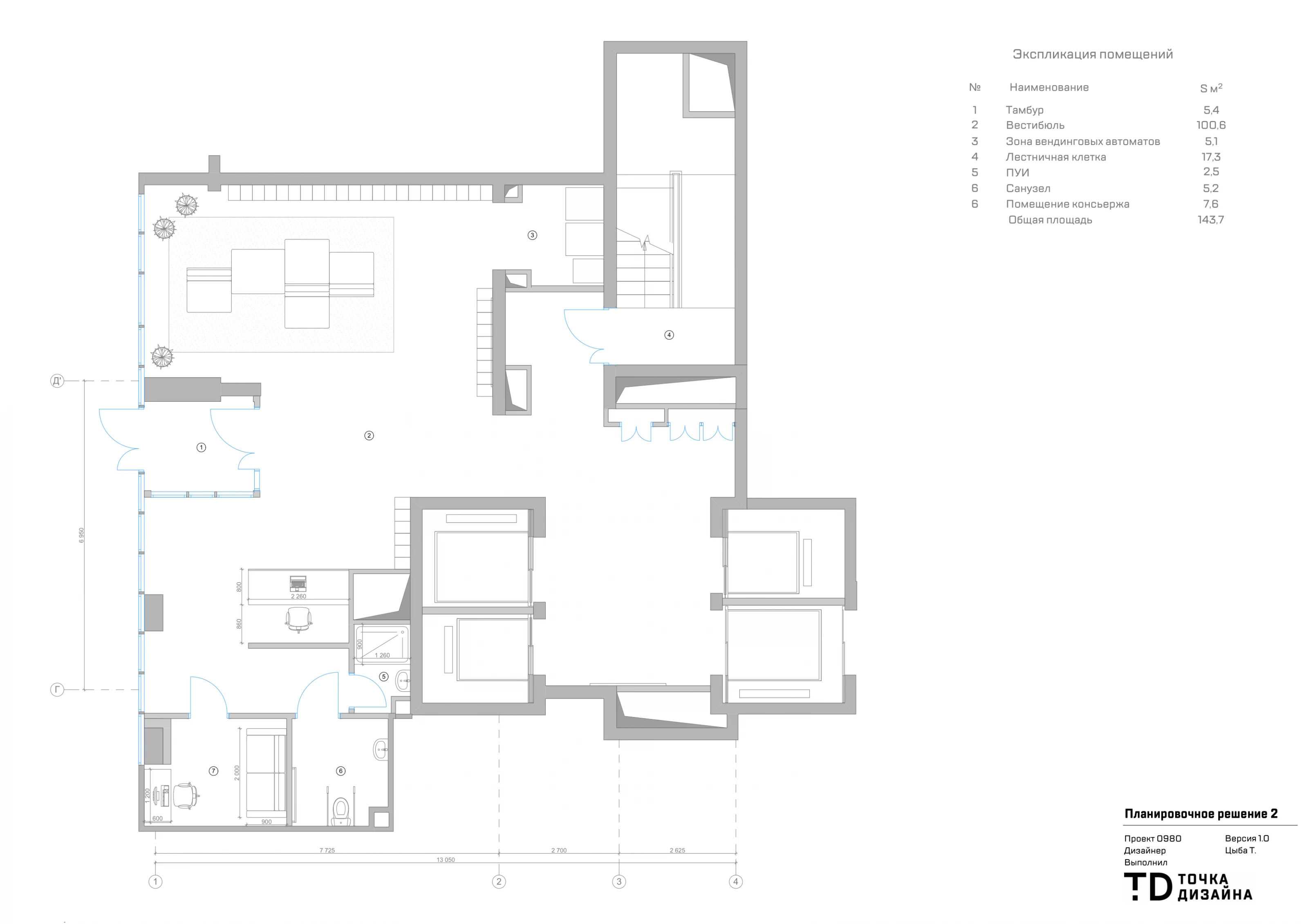
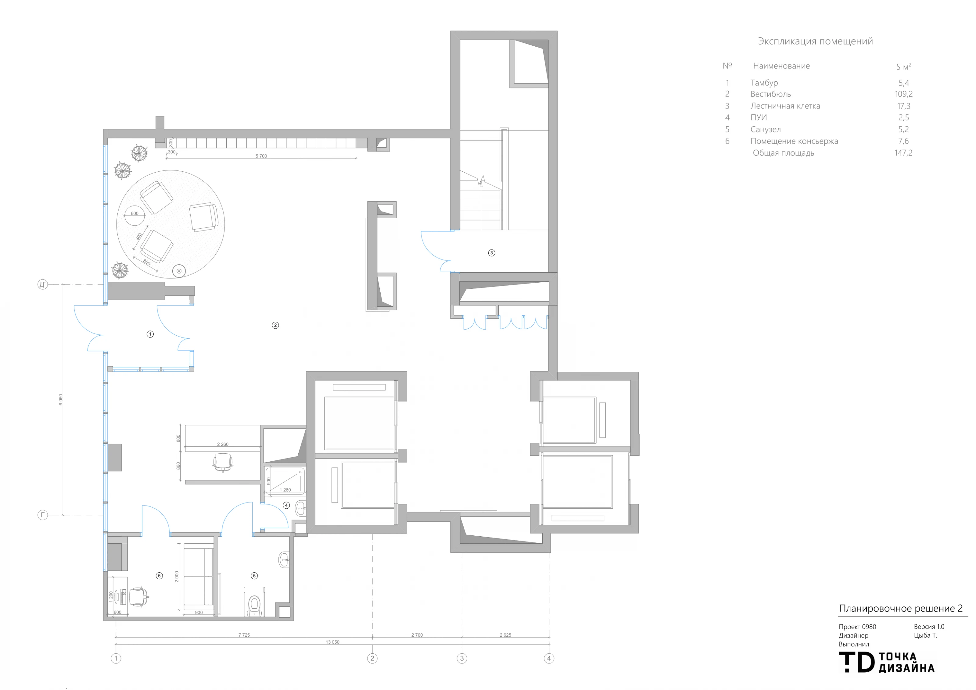
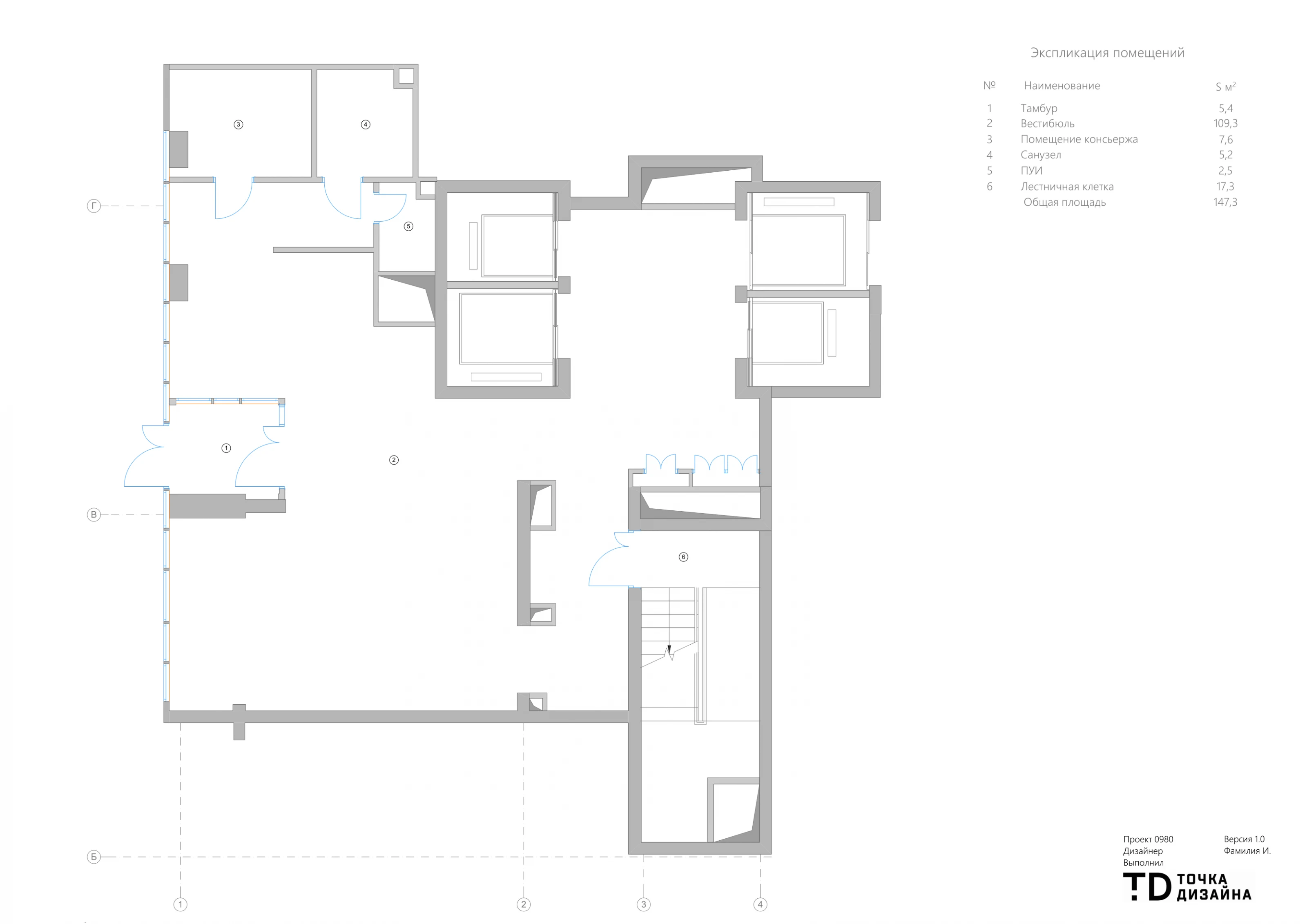
zhk_ogni_2_korpus__plan_rasstanovki_mebeli__planirovochnoe_reshenie_1-1.png zhk_ogni_2_korpus__plan_rasstanovki_mebeli__planirovochnoe_reshenie_2-1.png zhk_ogni__1_korpus__plan_rasstanovki_mebeli_-1.png zhk_ogni_rabochij_fajl__variant_2-1.png zhk_ogni_2_korpus__plan_rasstanovki_mebeli__planirovochnoe_reshenie_3-1.png
Следующий кейс Офис продаж для ГК ТЭН ЖК Парк Легенд
legend_park_hall_3_bez_lyudej_result.jpg