Хочешь скидку? Получи персональное предложение!

Заполните форму
— и мы вам перезвоним

Или напишите нам сами

Мосинжпроект

mosinzhproekt__vizualizacii_19_01__9_result.jpg

О проекте

  • Статус
    Реализовн
  • Площадь
    3000 м2
  • Теги
    Реализован

Хочу в таком же стиле!

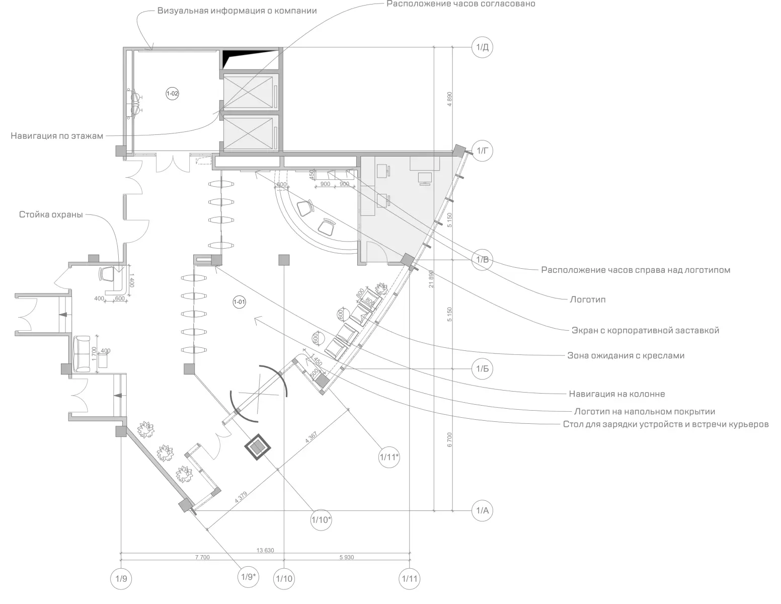
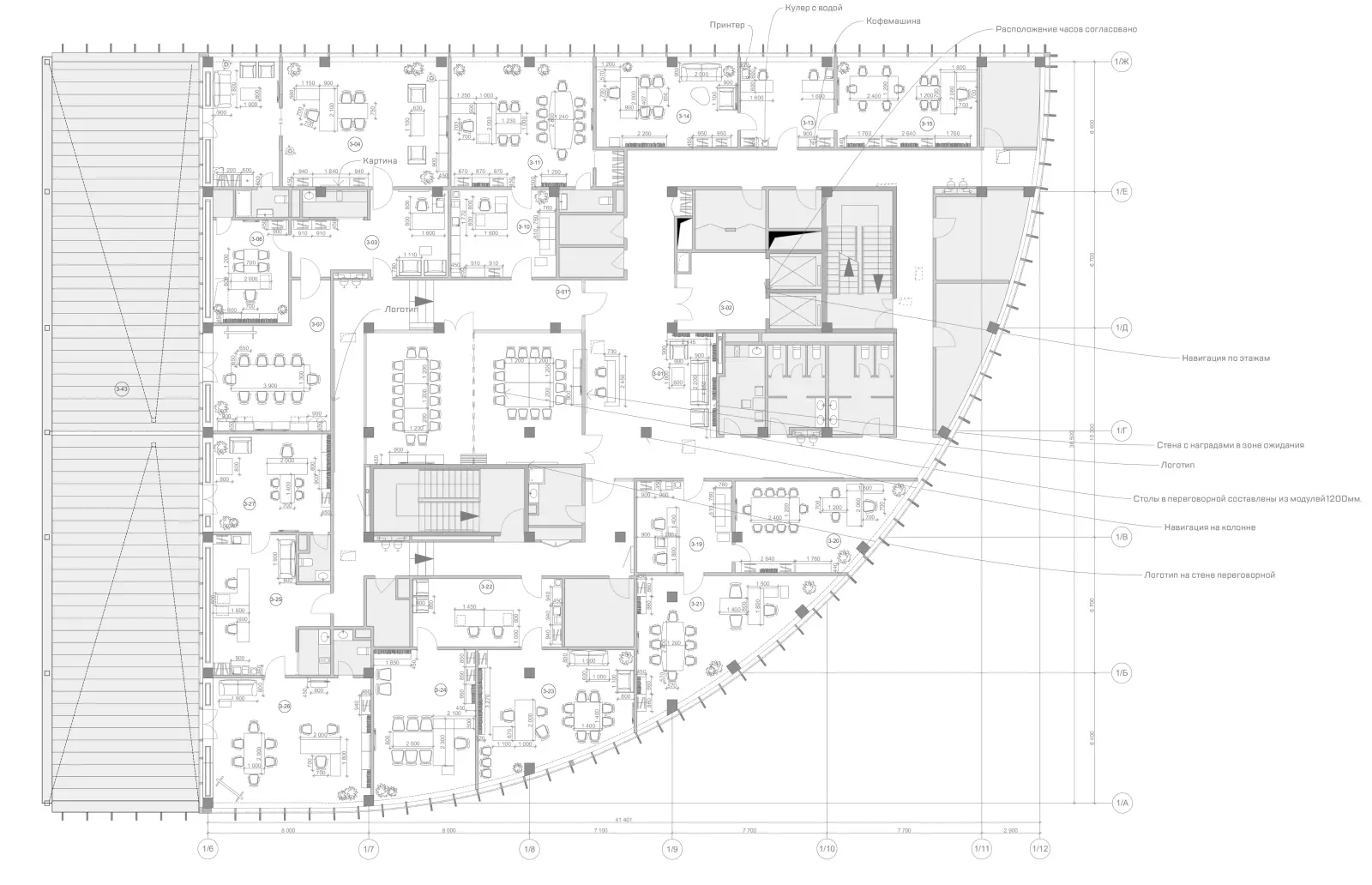
mosinzhproekt__plan_ofisy.jpg mosinzhproekt__plan_vhodnaya_gruppa.jpg
Следующий кейс Фитнесс зал в ЖК Детали
1_zaglavnoe__zal_1_08_result_result.jpg