Хочешь скидку? Получи персональное предложение!

Заполните форму
— и мы вам перезвоним

Или напишите нам сами

АЗС для электромобилей

fsh_zapravka0000_kopiya_result.jpg

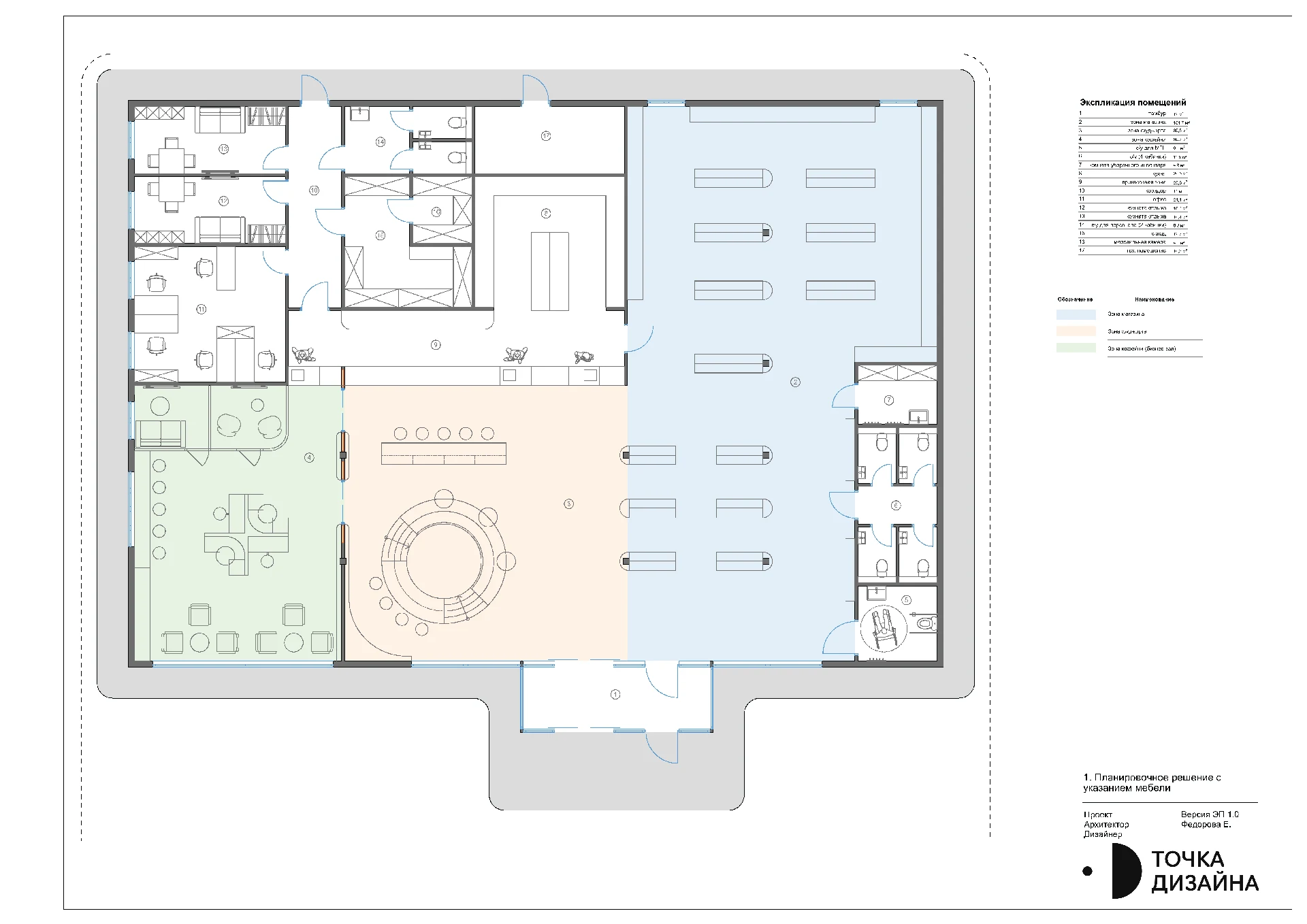
О проекте

  • Статус
    Проект
  • Год проектирования
    2024
  • Площадь
    350 м2

Хочу в таком же стиле!

koncepciya_zapravki_yelektromobilya_stranica_2_result.png
Следующий кейс Офис управляющей компании ПИК
pik_zone_23_waiting_1_result.jpg