Хочешь скидку? Получи персональное предложение!

Заполните форму
— и мы вам перезвоним

Или напишите нам сами

Здание библиотеки в г. Апатиты

img_0005_3_result.jpg

О проекте

  • Статус
    Реализован
  • Год проектирования
    2022
  • Клиент
    Администрация Мурманской области
  • Площадь
    2000 м2
  • Теги
    Реализован
    Получил награду

Хочу в таком же стиле!

Модернистская архитектура здания и богатая история локации вдохновили дизайнеров на сохранение советского наследия. Они сфокусировались на бережном восстановлении исходных архитектурных особенностей и материалов — песчаника, мрамора, паркета и «парящей» лестницы. При создании визуальной концепции проекта команда студии «Точка дизайна» вдохновлялась эстетикой советской эпохи. Например, необычными фасадами: из-за назначения здания в выполненных в форме флагштоков изгибах люди стали узнавать страницы открытой книги. Архитекторы дополнили их контурной подсветкой, благодаря которой мягкие линии смотрятся особенно интересно в течение полярной ночи. Работа над интерьером началась с обновления инженерных коммуникаций и вентиляции. Первоначальная планировка объекта была удачной, поэтому основные функциональные блоки остались на прежних местах. Изменения коснулись только хозяйственных помещений, которые соседствовали с лифтовой зоной: их пришлось уменьшить, чтобы сделать пространство более инклюзивным. Высокие окна наполнили залы естественным светом, а воссозданное историческое остекление придало сложную игру бликов и отсветов на полу и стенах.  

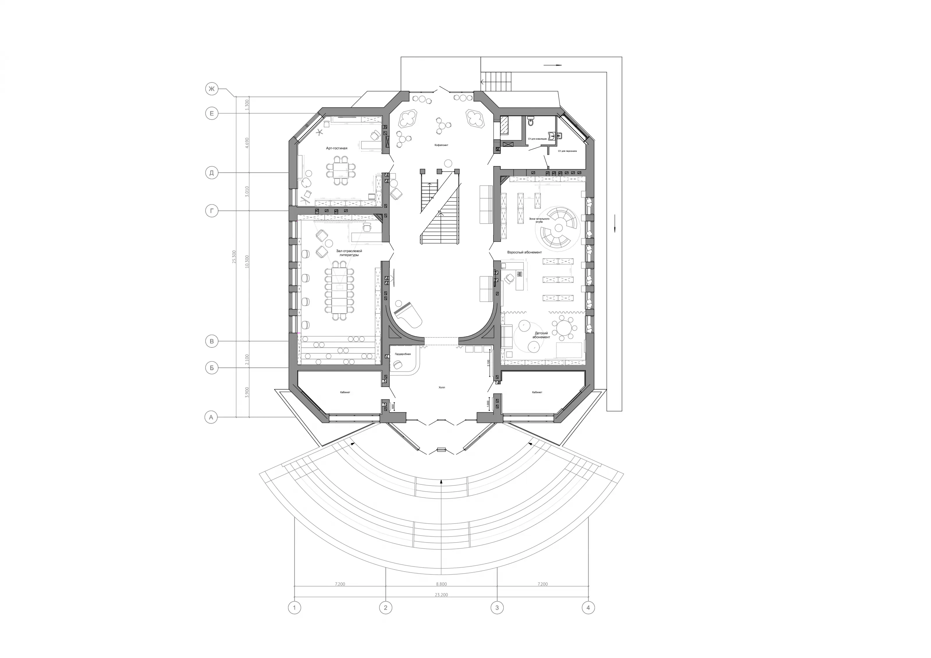
На первом этаже, отведенном под библиотеку, разместились входная зона с холлом и гардеробной, большая читательская зона, зал отраслевой литературы и арт-гостиная, подходящая для мастер-классов и камерных встреч. Каждое помещение Анастасия Юхневич постаралась адаптировать под интересы людей разных возрастов, которые будут приходить сюда в будущем. Главной точкой притяжения посетителей стала зона взрослого и детского абонементов. Ее продуманное наполнение обеспечило многофункциональность пространства: на полукруглых диванах могут собираться участники книжного клуба, а в отделенной портьерами с градиентом части зала — играть дети. Для них установлена отдельная секция детских книг, закуплены бизиборды, мягкие пуфы и столы для рисования. Задорное настроение тут задают круглые ковры, мягкие фактуры и цветные подушки на низких подоконниках для чтения. В помещении напротив, наоборот, царит умиротворяющая атмосфера: сценарии движения строятся вокруг длинного стола на четырнадцать человек. Возле окон расположились индивидуальные рабочие места с доступом к интернет-библиотеке, а в глубине пространства — «трибуна» для отдыха и проведения лекций. Малый зал, выполненный в духе арт-галереи,  подходит для узконаправленных мастер-классов, которые будут регулярно проводиться по графику. Акцентной деталью интерьера выступила лестница из белого мрамора, ведущая на второй уровень. За ней скрывается кофе-пойнт с яркими оранжевыми столиками и креслами. Панорамное остекление этой зоны открывает живописный вид на березовую рощу, а оформленные светлым камнем клумбы с живыми растениями обеспечивают ее визуальную связь с экстерьером и «впускают» природу в холл.

Площадь верхнего этажа была разделена между краеведческим музеем, современным выставочным пространством и концертным залом с роялем. Три года назад в этом самом месте проходила выставка работ из коллекции Андрея Малахова «В холодном климате, с любовью», сразу после которой библиотеку закрыли на реконструкцию. То есть еще до преображения здания оно уже начало работать по-новому: события стали более масштабными, возрос интерес жителей к библиотеке. Более того, именно организованная московскими дизайнерами и куратором Кристиной Дрягиной выставка помогла привлечь внимание общественности к реконструкции здания и добиться увеличения бюджета. Всего за несколько недель команда студии «Точка дизайна» подготовила сильный дизайн-проект, который кратно превосходил предыдущий план реновации и был быстро согласован — так началась работа над проектом. Перед долгожданным открытием здесь появились постоянные и временные экспозиции, положившие начало насыщенной культурной программе. Ее художественный совет также разрабатывал вместе с Андреем Малаховым, который активно участвует в развитии своего родного города. В пространстве уже выставлялись картины Энди Уорхола и японского художника Такаши Мураками. Обновленный центр продолжит вовлекать жителей Апатитов в культурные процессы и ближе знакомить их с современным искусством. Особое внимание в проекте уделено небольшой комнате, которая изначально была оформлена дермантиновыми панелями. Во времена выставки «В холодном климате, с любовью» там сделали инсталляцию: расставили живые цветы и встроили УФ-лампы, напоминающие о местной традиции использования искусственного освещения для домашних растений. Тогда это пространство стало визитной карточкой библиотеки, а неоновая надпись с названием выставки натолкнула основателя студии «Точка дизайна» Степана Бугаева на идею о сочетании акцентного розового цвета с коричневой отделкой стен. В результате дермантин сменился гипсовыми панелями из-за требований пожарной безопасности, но расслабленная атмосфера и тактильные материалы были сохранены. Мягкие диваны с пастельно-розовой обивкой здесь соседствуют с большим столом и креслами в том же оттенке: оформление выглядит настолько неформальным и стильным, что даже глава городской администрации проводит там планерки и онлайн-встречи.  

Холодная палитра цветов, использованных на фасадах, легла в основу интерьерных решений. Мурманская область, к которой относятся Апатиты, расположена в северном регионе и соседствует со Скандинавскими странами. Активный культурный обмен с Данией, Финляндией и Швецией повлиял на визуальные предпочтения горожан. Привычные сочетания серого, белого и красного интуитивно понятны местным жителям, поэтому их решили сохранить и дополнить фактурными деталями. Мебель в проекте довольно нейтральная: стулья из светлого дерева, отреставрированные кресла и перетянутые диваны не изменяют прежнее настроение интерьера, а просто делают его более современным. Бархатистые ткани обивок сбалансировали строгие отделочные материалы — природный мрамор, характерный для советских учреждений ракушечник и декоративную штукатурку под бетон на стенах одного из залов. Анастасия Юхневич и другие дизайнеры старались во всем сохранить и достоверно повторить оригинальную отделку: даже поврежденный временем кусок мрамора был заботливо заменен подобранным в тон материалом. Ощущением уюта и тепла интерьер наполнили яркие акценты — в том числе, оранжевые светильники, отсылающие к образу солнца. Его силуэт часто дублируется в круглых коврах, а оттенок — в текстиле и декоре. Симметрии и дополнительного объема в помещение привнесли зеркальные потолки и гипсовая лепнина. Специальная система освещения с разными сценариями была разработана командой студии вместе с петербургскими светодизайнерами MDM Light. В дизайн-проект были интегрированы лаконичные лампы и абажуры, которые облегчили торжественность найденных на Авито люстр под хрусталь. Так, обычная городская библиотека в Апатитах превратилась в культурный центр, миссия которого — сделать литературу и искусство более доступными для жителей города. Благодаря обновлению пространства они больше вовлекаются в современный контекст и обретают место для общения и досуга. Здесь проводятся кружки, концерты, встречи по интересам и детские развивающие мероприятия. В работе над проектом участвовали десятки неравнодушных людей — дизайнеры и архитекторы, представители администрации, губернатор области и телеведущий Андрей Малахов. По инициативе последнего к оформлению пространства присоединился художник Валерий Чтак: из-под его руки вышли аккуратные росписи на стенах галереи. Фрески, пострадавшие из-за потопа в ходе ремонта, восстанавливали при помощи выпускников Суриковского училища. Им удалось передать авторскую стилистику изображений и дух разных временных периодов, от образов Кирилла и Мефодия до Владимира Маяковского.

planirovka_1_yetazh.jpg planirovka_2_yetazh.jpg
О проекте написали
Отзыв от заказчика
maxresdefault.jpg

Юлия Яковлева,

Начальник отдела по культуре и делам молодежи г. Апатиты

Смотреть кейс
«Наша библиотека — это предмет гордости горожан. Благодаря нестандартному подходу, настойчивости и профессионализму Степана Бугаева и его коллег, которым приходилось, взаимодействуя с множеством подрядчиков, решать нерешаемые задачи. »
Награды
Следующий кейс Проект ДОУ СОШ в Омске в ЖК Кварталы Драверта
adm003_0000_result.jpg