Хочешь скидку? Получи персональное предложение!

Заполните форму
— и мы вам перезвоним

Или напишите нам сами

Детская клиника Docdeti

1_zaglavnoe_pediatria_1floor_hall_1_result.jpg

О проекте

  • Статус
    Ренализован
  • Теги
    Реализован

Хочу в таком же стиле!

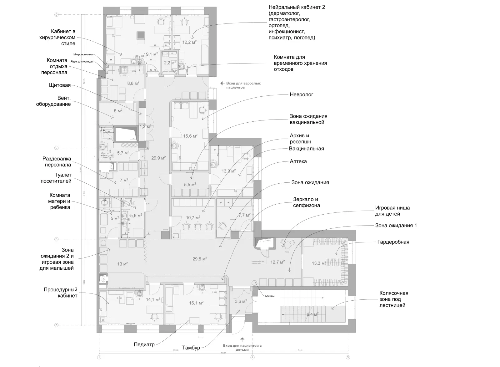
csp_1_yetazh__kopiya.jpg csp_2_yetazh.jpg
Следующий кейс Офис-кофейня MARISO
1_zaglavnoe_mariso__ofis_3_variant_result.jpg